Bambino play & learn lounge
Proyecto: Flavio Mejía + Naax Arquitectos
Interiorismo: Diana Sanchez y Samantha Díaz
Ejecución de obra: Naax Arquitectos
lugar: San Pedro Garza García, Nuevo León, México.
Software's: Revit, Sketch Up, Vray, Photoshop.
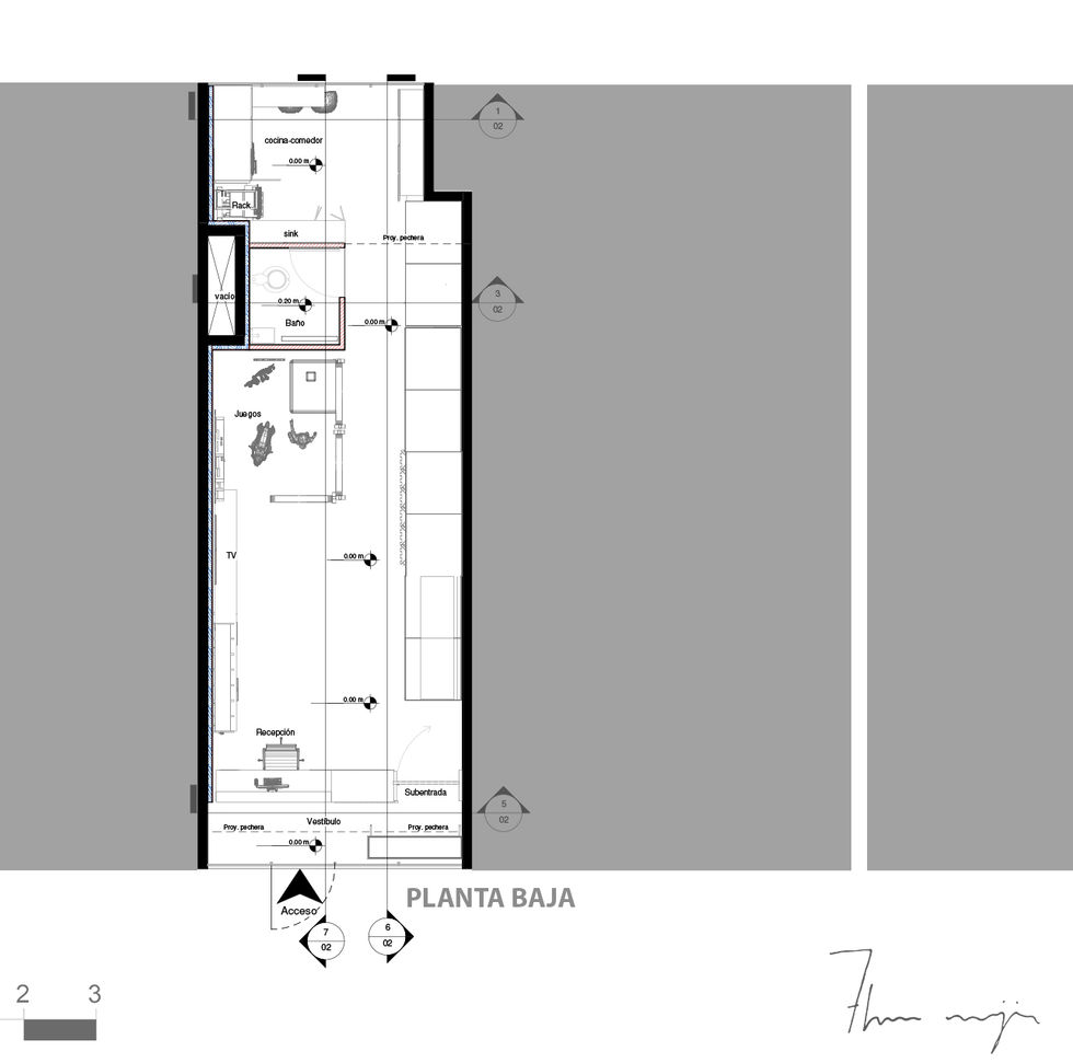
Este proyecto consiste en la remodelación de un local comercial para un nuevo centro infantil. Se centra en el aprovechamiento de la luz natural, y la optimización de circulaciones llevándonos a la iniciativa de menos muros, ya que la iluminación accede por dos extremos, que son este a oeste. Esto nos lleva a buscar formas de mitigar la radiación solar por parte del edificio existente. El acceso principal al local comercial se encuentra a primera instancia del pasillo del segundo piso del edificio, una vez adentro se encuentra la recepción con un filtro pasando por la puerta que está controlada por personal de la guardería. Una vez pasado el filtro de la sub entrada se encuentra la juguetería, (muebles infantiles, casas de madera acolchonadas en miniatura pegada a los muros, con una TV, centrada para la estancia de los infantes, continua con un baño, que extrae los olores hacia un cubo vacío que se encuentra marcado al lado del baño. Junto a eso se encuentra el site, el rack para sistemas y almacén y cocina comedor para personal e infantes. La materialidad de la guardería comprende en los muros y en el techo de panel de yeso, que incluyen un aislante acústico, pintura blanca, muebles a diseño exclusivo, puertas y ventanas de madera tono natural claro y piso laminado aparente de madera. El área de la juguetería se encuentra pintado de colores variados con especie de pentágono en los muros simulando costos, y teniendo carpintería moldeadas, quitando las esquinas. Contando con juguetes, tatami, y una luminaria con especie de nube para el área central. Mientras que la luminaria del local se compone de LED’s, para una alta eficiencia. La mueblería hacia la cocineta se compone de un acabado en color blanco y tono natural de madera, teniendo contactos y nodos de red al alcance para trabajos de coordinación.








































